Property Details
Listing
- Property Type: Single Family
- MLS Number: 5057107
- MLS Status: Active Under Contract
- Lot Description: Country Setting, Open, Trail/Near Trail, View, Wooded, In Town, Near Golf Course, Near Skiing, Neighborhood, Near School(s)
- Acreage: 8.35
- Foreclosure: No
- Virtual Tour: Virtual Tour
- Latitude: 42.981769
- Longitude: -71.694926
Building
- Property Type: Single Family
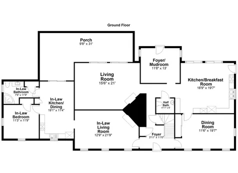
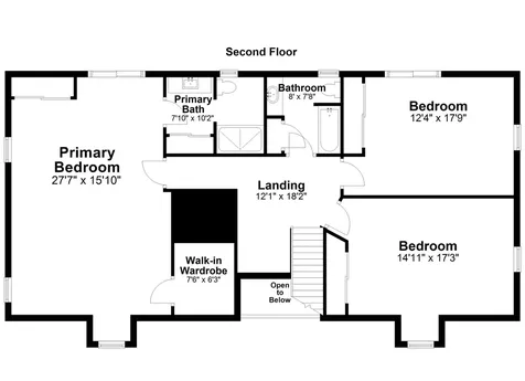
- Square Feet: 5,658
- Year Built: 1988
- Zoning: RA
- Stories: 2
- Roof: Metal, Architectural Shingle
- Building Construction: Wood Frame, Brick Exterior, Vinyl Siding
- Foundation: Poured Concrete
- Garage Spaces: 5
Location
- Town: New Boston
- County: Hillsborough
- State: NH
- Zip: 03070
Finance
- Taxes: $14,947
Interior Features
Bedrooms
- Bedrooms: 4
Bathrooms
- Bathrooms: 5
- Full Baths: 1
Basement
- Basement: Climate Controlled, Concrete, Concrete Floor, Daylight, Finished, Full, Insulated, Interior Stairs, Walkout, Exterior Access, Basement Stairs
Other
- Floors: Carpet, Ceramic Tile, Hardwood, Laminate, Marble, Vinyl
Exterior Features
Features
- Parking Description: Auto Open, Finished, Heated Garage, Storage Above, Driveway, Garage, Parking Spaces 5 - 10, Paved, Detached
- Driveway: Paved
- Road Frontage: 207
Utilities and Appliances
Utilities and Appliances
- Appliances Included: Electric Cooktop, Dishwasher, Dryer, Microwave, Wall Oven, Refrigerator, Washer, Water Heater off Boiler, Vented Exhaust Fan
- Heat System: Oil, Baseboard, Hot Water, Multi Zone,2 Stoves, Mini Split
- Sewer: Private, Septic
- Water: Drilled Well, Private
Community
Schools
- High School: Goffstown High School
- Junior High: Mountain View Middle School
- Elementary School: New Boston Central School




























































